Grand Hall
Designed for first- and second-year students, Saint Louis University's Grand Hall features single and double suite-style rooms. It also has classrooms, dedicated Learning Community educational and innovation spaces, study rooms, floor lounges, kitchens and laundry rooms.
View a video tour of Grand Hall, including options for arranging your room.
About Grand Hall
| Address: | 3605 Laclede Avenue, St. Louis, MO 63108 |
| Front Desk: | 314-977-9854 |
| Amenities: | Classrooms, a conference room, meeting rooms, study rooms, floor lounges, kitchens and laundry rooms on alternating floors |
| Additional special features: | Outdoor courtyard |
| Room types: | Single and double rooms; suite-style |
| Bathrooms: | Semi-private. Residents of the suites share a bathroom. |
| Dining: | Grand Hall features a 740-seat dining hall that includes restaurant-style seating, a fireplace, multiple food stations and an outdoor courtyard. |
| Parking: | Laclede Garage |
| Population: | Up to 528 first- and second-year students on six residential floors. Single-gender suites on mixed-gender floors. |
| Visiting Restrictions: | Students living in any University-managed residence halls or apartments may check in guests at the front desk between the hours of 7 a.m. and 2 a.m., Sunday through Thursday or 7 a.m. to 4 a.m., Friday and Saturday. Guests must be checked in and escorted by their host at all times. |
| Special Hours: | Grand Hall stays open during Thanksgiving, winter, and spring breaks. |
Flip through a photo slideshow of Grand Hall.
Floor Plans and 360° Views
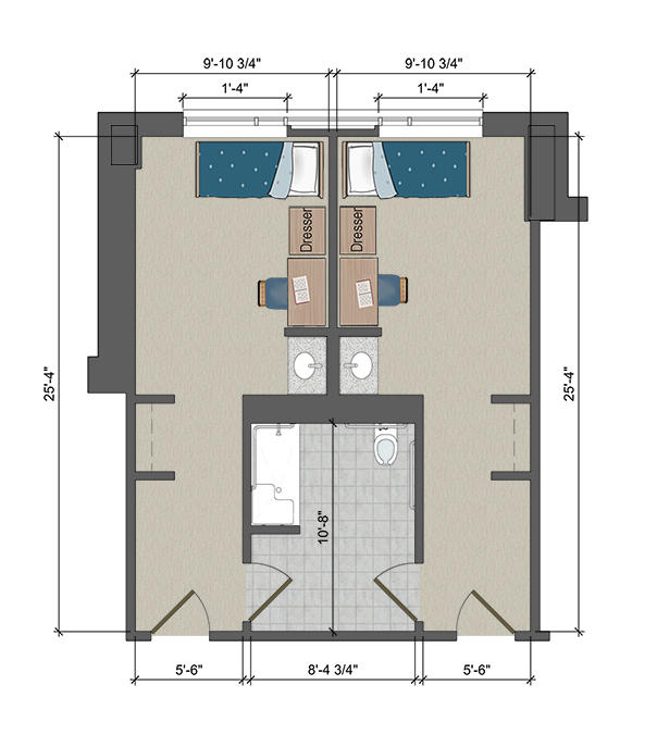
Floor Plan
Room Includes:
Bed: 38"W x 86"L
Dresser: 36"W x 24"L x 30"H
Closet: 38"W x 24"L
Desk: 42"W x 24"L x 30"H
Chair: 18"W x 18"L x 32"H
360° View
Room Includes:
Bed: 38"W x 86"L
Dresser: 36"W x 24"L x 30"H
Closet: 38"W x 24"L
Desk: 42"W x 24"L x 30"H
Chair: 18"W x 18"L x 32"H
Room Includes:
Bed: 38"W x 86"L
Dresser: 36"W x 24"L x 30"H
Closet: 38"W x 24"L
Desk: 42"W x 24"L x 30"H
Chair: 18"W x 18"L x 32"H
360° View
Room Includes:
Bed: 38"W x 86"L
Dresser: 36"W x 24"L x 30"H
Closet: 38"W x 24"L
Desk: 42"W x 24"L x 30"H
Chair: 18"W x 18"L x 32"H
Room Includes:
Bed: 38"W x 86"L
Dresser: 36"W x 24"L x 30"H
Closet: 38"W x 24"L
Desk: 42"W x 24"L x 30"H
Chair: 18"W x 18"L x 32"H














































